法兰克福市中心
现代化四居室公寓
售价: 590.000,00 欧元
房屋类型: 公寓
居住面积: 大约117 m²
房间数: 4
浴室数: 2
卧室数: 3
楼层: 3
建筑年份: 2000
客人卫生间: 有
电梯: 电梯
房屋状态: 整洁
停车位: 1 地下停车位
售价: 590.000,00 欧元
中介费用: 购买价格的5.95%(包含增值税)
项目描述:
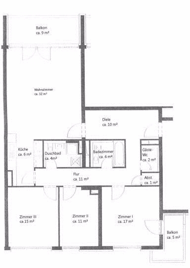
该四居室现代化公寓位于交通便利的法兰克福市西部。该公寓房间布局合理,所处小区
基础设施完备,无论是购物超市,幼儿园还是餐厅都一应俱全。公寓设有两间浴室和一
个额外的客用卫生间。两个宽敞的阳台分别位于南侧和北侧,从那里您可以尽情享受窗
外美景。开放式厨房连接客厅与餐厅。进门处的巨大嵌入式衣柜和一个储物空间更增添
了公寓的舒适和实用性。另外,现有的购买价格还包含一个地下停车位和一个储物地下
室。建筑内还配有公用投币式洗衣机和电梯供您使用。
房屋配置:
嵌入式厨房;客用卫生间;电梯;阳台;地下停车位
位置:
该公寓所在的 Bockenheim 区基础设施便利。棕榈园,沙根堡博物馆和著名的法兰克福
大学都位于此区域。无论是小酒馆,咖啡厅,餐厅,还是超市,礼品店,书店,亦或是学
校,幼儿园都应有尽有。
此项目距离西火站 400 米,步行仅需 5 分钟, 距离法兰克福会展中心900米,步行11
分钟到达。
您可以乘坐线路 S3,4,5,6,直达法兰克福市中心。如果选择驾车,5 分钟便可到市中心
和主火车站,15 分钟就能到达法兰克福国际机场。
距离法兰克福会展中心900米,步行11分钟
距离法兰克福西火车站400米,步行5分钟








